Piccola Cava - inclusivo
Codice: 34.05.140 - Piccola cava - inclusivo
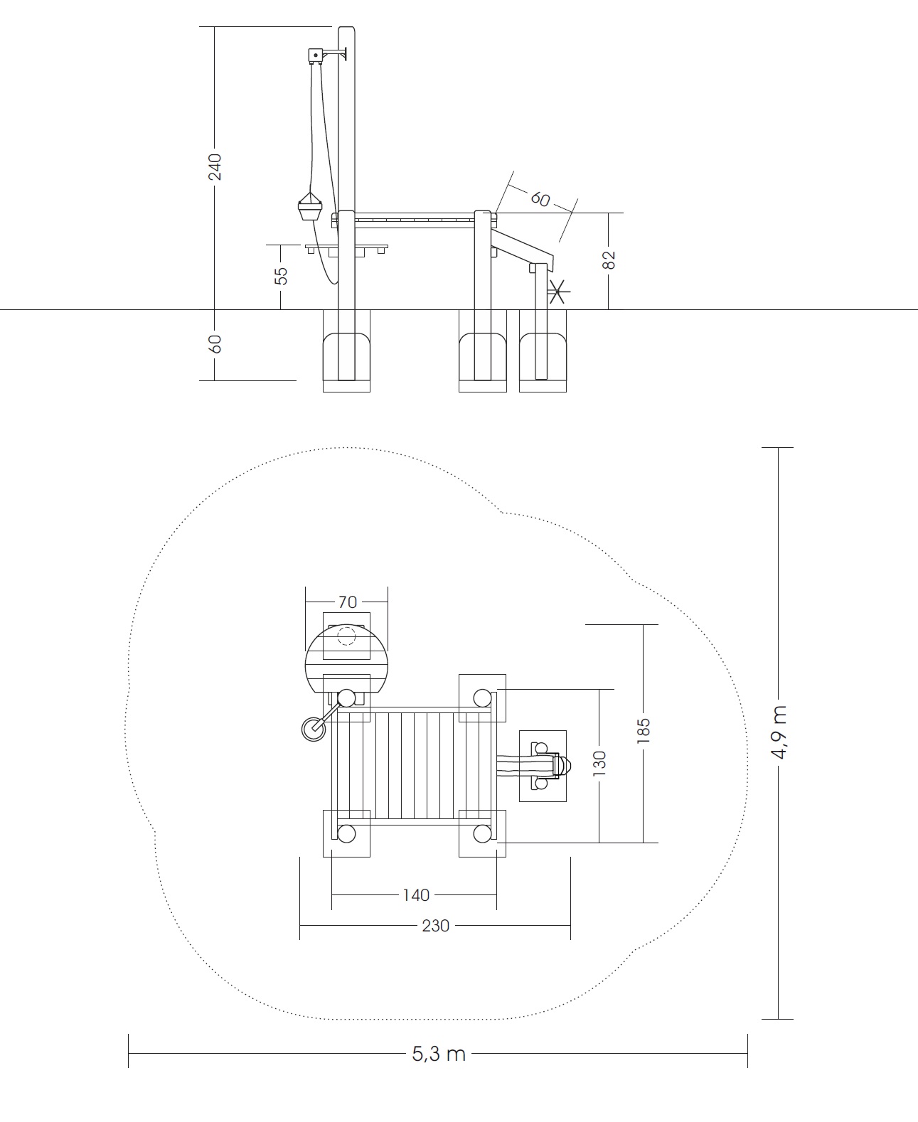
Descrizione
- Struttura per il gioco con la sabbia realizzata interamente in legno massello naturale di robinia.
- Ingombro complessivo ca. 2,30 x 1,85 x h max 2,40 m.
- Composizione:
- piattaforma-piano di lavoro h ca. 82 cm. dim. ca 140x130 cm;
- annesso tavolino Ø 70 cm, h 55 cm;
- carrucola completa;
- canaletta in legno lungh. ca. 60 cm;
- ruota in acciaio inox completa di elementi di sostegno.
Spazio minimo
5,30 x 4,90 m
Altezza di caduta
0,82 m
Superficie d’impatto
non necessaria
Fondazioni
Plinti in cls n. 7
Peso
ca. 350 Kg
Età consigliata
> 3 anni
